
1. 방출구에 의한 분류
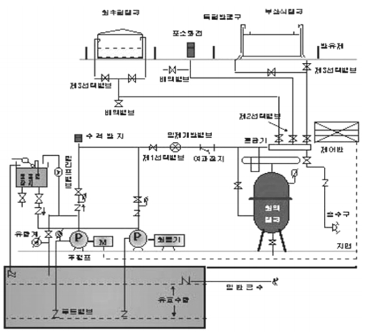
1) 고정포 방출방식
① 위험물 옥외저장탱크에 폼 챔버를 설치하여 포를 방사하는 설비이다.
② 탱크의 직경, 포방출구의 종류에 따라 일정한 방출구를 탱크 측면에 설치한다.
③ 폼 챔버의 종류에는 통, 계단 등의 부대시시설이 있는 I형 , 반사판이 있는 Ⅱ형, Floating Roof 탱크에 사용하는 특형이 있다.

< Fig01. 고정포방출설비 >
2) 포소화전 방식
① 고정식 배관을 설치하고 포호스, 포노즐에 의해 사람이 직접 포를 방사하는 설비이다.
② 개방된 주차장, 옥외 탱크저장소의 보조설비용으로 사용한다.
3) 포호스릴 방식
① 포를 직접 방사하는 호스릴을 이용한 이동식의 보조적인 설비이다.
② 토출량도 적고 취급이 간편한 간이설비이다.
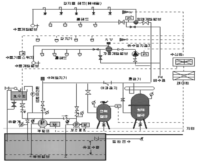
4) 포헤드 방식
① 소방대상물에 고정식 배관을 설치하고 포 헤드에 의해 포를 방사하는 고정식설비이다.
② 포헤드의 종류에는 포워터스프링클러헤드, 포헤드 2종류가 있다.

< Fig02. 홈헤드설비 방식 >
2. 방출구 종류
1) 고정포방출구
1-1) Ⅰ 형
방출된 포가 유면상에서 신속히 전개되도록 유면상을 덮어 소화작용을 하도록 통,계단 등의 부속설비가 있는 포방출구로서 콘루프탱크에 설치한다.

< Fig03. Ⅰ형 방출구 >
1-2) Ⅱ 형
반사판을 부착하여 방출된 포가 반사판에서 반사하여 탱크 내면의 벽을 따라 흘러 들어가 유면을 덮도록 한 방출구로서 콘 루프 탱크에 설치한다.

< Fig04. Ⅱ형 방출구 >
1-3) 특 형
탱크 측면으로부터 0.9m이상의 굽도리판을 1.2m 떨어진 곳에 설치하고 양쪽 사이
의 환상부위에 포를 방사하는 고정포방출구로서 플로팅 루프탱크에 설치한다.

< Fig05. 특형 방출구 >
※ 폼쳄버의 봉판 이란
폼쳄버에는 가연성 증기가 역류하는 것을 방지하기 위하여 토출구를 밀폐하며, 화재시 포수용액이 가압하면 봉판이 파괴되어 폼을 탱크내로 방사시킨다. 토출구를 밀폐하는 봉판은 납, 주석, 유리 , 석면 등을 사용하며 , 포수용액 방출시 작은 압력에 의해서 깨질 수 있도록 한다. 또한 평상시는 흘러넘친 위험물이 고정포방출구 및 송액관내에 침입하지 않도록 기능을 한다.
1-4) Ⅲ 형(표면하 주입식)
옥외탱크 화재시 표면 주입식의 경우는 화재로 인하여 탱크 측면에 설치된 폼챔버가 파손되는 단점이 있으며 , 또한 초대형 탱크에서는 표면에서 주입하는 기존의 방식으로는 유효한 소화가 곤란하다. 따라서 NFPA에 의하면 비등하는 액체일 경우 포의 유효 방호거리를 30m로 간주하므로 직경 60m이상의 탱크는 표면하 주입식을 권장한다.
① 특 징
· 콘루프탱크와 같은 대기압 탱크에 가장 효과적이다.
· 플로팅루프탱크, 수용성액체 위험물, 점도가 높은 액체 위험물 등에서는 사용하지 않는다.

< Fig06. 표면하 주입구 >
② 장 점
· 화재시 탱크가 변형되어도 포 주입에 영향이 적다.
· 바닥에서 포가 부상하면서 탱크 유면의 온도를 저하시킨다.
· 포가 유면상 넓고 고르게 퍼질 수 있다.
③ 단 점
· 표면하 주입식은 방사압이 높아 수용성 액체 위험물의 경우 포가 파괴되기 쉬운 관계로 사용하지 않는다.
· 포를 하부에서 주입하므로 플로팅루프탱크는 포가 균일하게 방사되지 않는다.
· 포가 액면에서 부상하므로 유류에 오염되는 포는 사용할 수 없다.
· 표면하 주입식은 탱크 유압에 대항하여 높은 압력으로 주입하여야 한다.
· 높이 18m의 경우 1MPa이상의 압력이 필요하다.
· 포방출구의 높이는 탱크 바닥에 고인 물 높이 이상 위치에 설치하여야 한다.
1-5) Ⅳ형(반표면하 주입식)
표면하 주입식을 더욱 개량한 것으로 표면하주입식이 포 방출시 포가 탱크 바닥에서 액면까지 떠오르면서 유류에 오염되어 파괴되므로 이로 인하여 소화효과가 저하되는 것을 막기 위하여 개발된 방식으로 호스가 액체 표면에 떠올라 포를 방출한다.
① 작동방법
· 내유성 있는 호스가 Container속에 넣어져 Cap으로 봉합되어 탱크내 액체로부터 보호되고 있으며, 호스 입구와 출구는 Air shock pipe로 우회(By-pass)되고 있다.
· 화재시 배관내에 포가 공급되면 공기가 압축되어 shock pipe를 통하여Cap을 깨뜨린다.
· 이때 포 압력에 의해 호스가 액체 표면에 떠올라 포를 방출한다.

< Fig07. 반표면하 방식 >
② 장 점
· 포가 유류에 오염 및 파괴되는 것을 방지한다.
· 화재시 탱크 상부가 변형되어도 포 주입에 영향이 적다.
· 포가 유면상에 넓고 고르게 퍼질 수 있다.
· 불화단백포 이외에 수성막포를 사용할 수 있다.
2) 고팽창포 소화설비
· 고팽창포는 팽창비 80이상 1,000이하의 포인데 방호대상구역을 폼으로 채워서 화재를 제어하는 설비이다. 주된 방호대상은 랙크식 창고, 항공기 격납고 등에 사용되며 , 질식, 냉각소화 효과가 있다.
· 고팽창포 발생기는 흡출식과 송출식이 있다.

< Fig08. 고발포형 고정포 방출구 >
Aspirator형으로서 포수용액 분사의 힘으로 공기를 흡인하고 혼합된 포수용이 발포기를 통해 분사되면서 포스크린을 때려 약 250배 배율로 팽창 방사된다.

< Fig09. 흡출형/송풍형 고발포기 >
Blower형으로서 혼합된 포수용액이 노즐에서 분사될 때 송풍기를 이용하여 포스크린을 통과시키면 약 500 - 1,000배 발포배율로 팽창 방사된다.
3) 포소화전
이동식 포소화설비에 사용하는 포 방출구로서 포소화전에 호스, 노즐 등을 접속하여 포를 직접 방사하는 것으로 호스릴을 이용하여 사용할 수 도 있다.
① 설치위치
|
구 분
|
위 치
|
수평거리
|
|
방유제가 있을 경우
|
탱크로부터 방유제 안으로 누출된 위험물의 화재를 유효하게 소화할 수 있도록 방유제밖에 설치할 것
|
방유제의 각 부분(방유제의 외측으로부터 방유제의 내측으로 10m까지의 부분)으로부터 수평거리 40m이내
|
|
방유제가 없을 경우
|
방호대상물로부터 수평거리 15m이상 이격하여 설치할 것
|
|
② 설치기준
|
구 분
|
옥외포소화전의 경우
|
차고, 주차장의 경우
|
|
방사압력
|
3.5(kg/㎠)이상(최대 3개)
|
3.5(kg/㎠)이상(최대 5개)
|
|
방 사 량
|
400(ℓ/min)
|
300(ℓ/min)이상
|
|
방사시간
|
20분이상
|
|
|
방사거리
|
수평거리 15m이상
|
수평거리 15m(포소화전 25m)
|
|
기 타
|
|
저발포를 사용, 방수구로부터 3m이내
|
※ 관포체적이란
바닥면으로부터 방호대상물 높이보다 50cm 높은 위치의 체적으로 이는 전역방출방식에서 방호대상물의 체적보다 여유율을 감안한 수치이다.
4) 포헤드
4-1) 포 워터 스프링클러 헤드
· 포포수용액을 방사할 때 헤드내 흡입된 공기에 의해 포를 형성하여 발생된 포를 Deflector로 방사시킨다.
· 물만을 방사할 경우는 스프링클러 개방형 헤드와 유사한 특성을 갖는다.
※ Foam water sprinkler 헤드는 흡기형 헤드이나 개방형 스프링클러헤드는 비흡기형 헤드이다. 따라서 개방형 헤드를 사용할 경우는 포 형성이 되지 않는다.
4-2) 포 헤드의 설치수량
· 포헤드 : 1개 이상/바닥면적 9㎡
· 포워터 스프링클러 헤드 : 1개 이상/바닥면적 8㎡
4-3) 헤드의 배치
· 정방향 배치 → 헤드의 간격 S = 2r cos45°
유효반경r = 2.1m을 적용하면, 헤드간격 S = 2 × 2.1 × cos45° ≒ 3m
· 장방향 배치 → 대각선의 간격 X = 2r
유효반경r = 2.1m을 적용하면, 헤드의 대각선 간격 X=2×2.1 ≒ 4.2m
| 포소화설비 점검방법 - 외관점검, 기능점검 등 (0) | 2024.11.07 |
|---|---|
| 포소화설비의 펌프 및 배관의 설계기준 (0) | 2024.11.06 |
| 포소화약제 산정방법 (0) | 2024.11.01 |
| 포소화약제의 종류 및 특성 (4) | 2024.10.31 |
| 포소화설비의 구성 및 개요 (0) | 2024.10.30 |