
1. 등전위본딩 시스템의 개념 및 적용 예시 등
외부 피뢰설비에 있어서 등전위화는 피보호범위에서 화재, 폭발위험, 인명의 위험발생을 감소시키기 위한 매우 중요한 방법이다.
즉 피뢰설비, 금속구조체, 금속제 공작물, 계통외도전성부분 및 피보호범위내의 동력, 통신설비를 본딩용도체, 서지보호장치 등으로 접속함으로서 등전위화를 확보할 수가 있다. 이 시스템은 건축물내의 LPZ에도 관계되는 것으로 건축물 내에 인입되는 모든 것에 대해서 등전위본딩을 실시하게 된다. 이러한 등전위본딩 시스템의 개념, 적용 예시 및 사례는 그림[Fig01~03]과 같다.

< Fig01. 외부 피뢰설비의 등전위본딩의 개념 >

< Fig02. 등전위본딩 시스템의 적용 예시 >

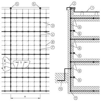
1. 수뢰부 2. 동판후레싱 3. 철근구조체 4. 메시도체 5. 메시도체의 접속 6. 내부 본딩바의 접속
7. 연결 8. 임의 연결 9. 주 철근구조체 10. B형 접지극(선택) 11. 기초접지극
a. : 일반적으로 5m b : 일반적으로 1m
< Fig03. 철근콘크리트조 건축물에서의 본딩 사례 >
2. 기능용 등전위본딩
기능용 등전위본딩은 정보·통신설비를 대상으로 하고 이것들의 기능을 목적으로 주로 전위의 기준점을 확보하기 위한 것인데 EMC(전자파양립성)와 밀접하게 관계되는 것이다.
1) 정보·통신기기 장해의 원인
- 뇌서지나 개폐서지
- 정전기방전
- 상용주파수에 의한 접지간의 전위차
- 전자계에 의한 접지도체에 의한 과도현상 등
2) 정보·통신기기의 장해를 방지하기 위한 대책
- 기기의 이뮤니티(내전압)
- 전기적 분리
- 등전위본딩
- 전위차를 최소화가기 위한 저임피던스의 기준전위면
- 실드 등
3) 기능용 등전위본딩 시스템이 적용되는 기기 및 설비
- 빌딩에서 내부 및 외부와의 접속에 의해 접지귀로를 갖는 통신데이터기기 및 데이터처리 기기설비 빌딩내부의 정보통신에 이용되는 직류전력의 공급망 전화자동교환기 또는 설비
- LAN-화재경보시스템 및 침입경보시스템
- 빌딩서비스설비 등
4) 등전위본딩을 구성하는 방법(그림[Fig04]참조)
- 1점에 집중시키는 스타형 모든 정보기술기기(ITE)를 1점에 집중시켜 등전위화를 실현하는 방법
- 다점으로 분산시켜 면적으로 기준점을 설치하는 메시형 정보기술기기상호를 연결해서 면적에 의한 등전위화를 도모하는 방법
- 그림[Fig04]의 (a), (b)
⒜ 구조체와 절연시킨 것으로 소위 아이솔레이트접지(절연계 1점 접지)라고 불리워지는 것으로
접지대상기기를 건축물과 완전히 절연해서 1점 접지로 하는 시스템
⒝ 외부의 잡음 영향을 받기 어렵고 보수 점검이 용이하다는 특징을 가지로 있으며 직류전원으
로 가동하는 기기의 경우에 유효함.
- 그림[Fig04]의 (c), (d)
⒞ 인터그레이티드 (Integrated)접지(공용접지계)라고 함.
⒟ 등전위화가 쉽지만 외부의 잡음 등으로부터 영향을 받기 쉬우며, 접지계가 복잡하게 됨.
그 이외에 스타형과 메시형을 조합한 콤비네이션형도 있음.

< Fig04. 본딩 네크워크의 기본형 >
| 수평도체의 설치개념도 및 인하도선 시스템 (0) | 2023.12.11 |
|---|---|
| 등전위본딩 시스템의 개념 및 적용 예시 (2) | 2023.12.08 |
| 케이블드럼의 주의사항 및 취급방법(Cable Drum Precautions) (2) | 2023.12.06 |
| 계전기(Relay) 의 종류 / 전력량계(W.H.M) 형식 비교 (0) | 2023.12.05 |
| 디지털 보호계전기(Digital Relay)의 구성 / 강제여자회로의 설명 (0) | 2023.12.04 |